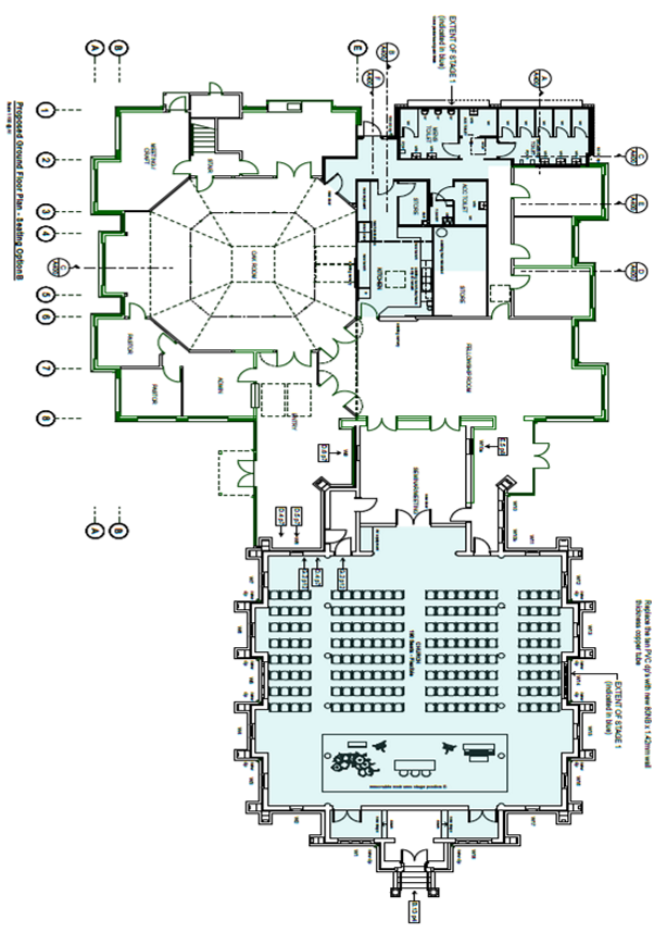
East Taieri Church Next Generation Project

“Build houses and settle down…Increase in number there; do not decrease…For I know the plans I have for you,” declares the LORD, “plans to prosper you and not to harm you, plans to give you a hope and a future.” (Jeremiah 29:5,6,11)